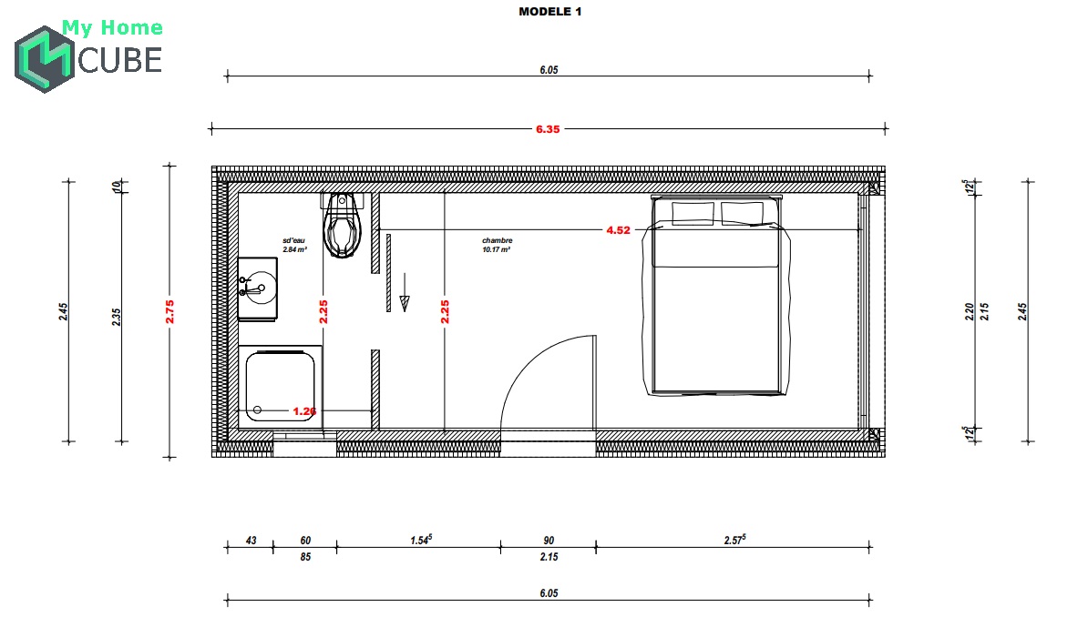
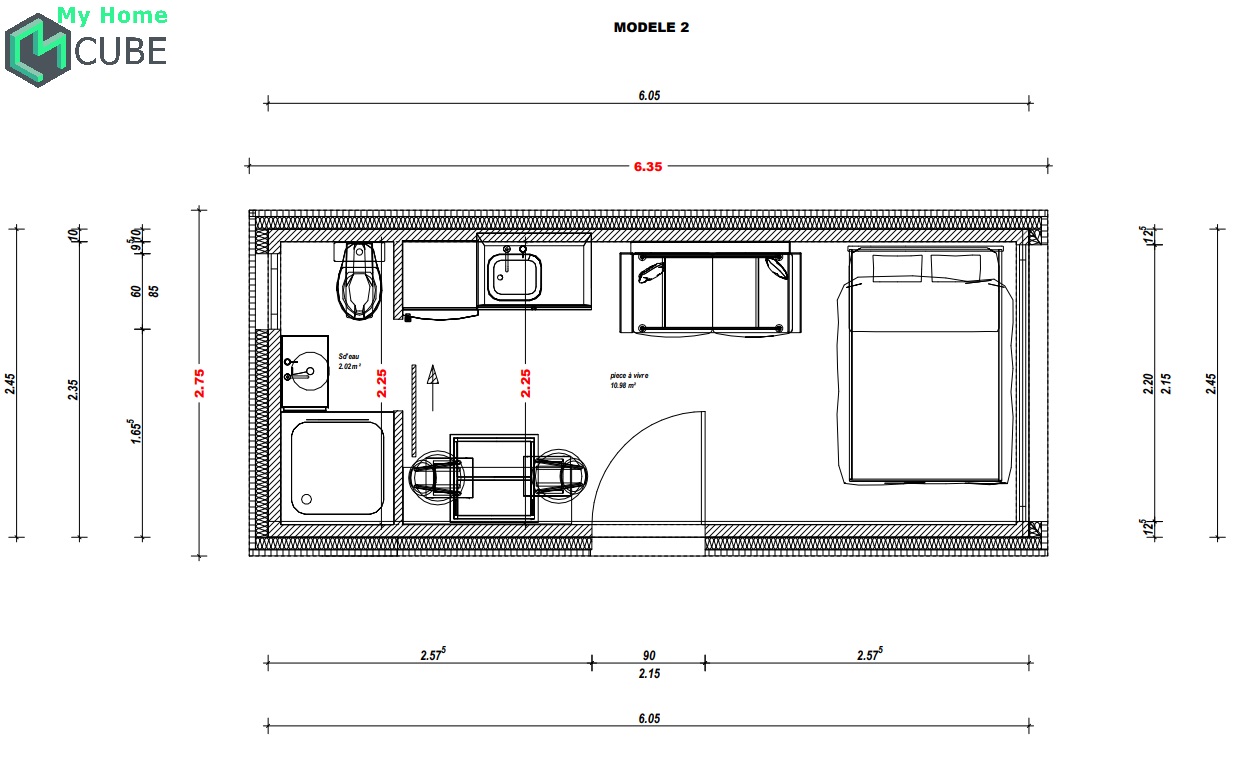
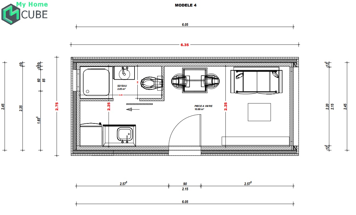
Description : Le Studio Standard offre une solution pratique et fonctionnelle pour créer un espace de vie ou de travail dans un conteneur d'expédition standard. Avec son design simple, ses caractéristiques essentielles et son rapport qualité-prix attractif, ce modèle est idéal pour ceux qui recherchent une option abordable.
Caractéristiques :
- Disposition Optimisée : Le Studio Standard utilise efficacement l'espace disponible avec une disposition intelligente qui maximise la fonctionnalité.
- Équipements en options : Des équipements en options, tels qu'une kitchenette compacte ou une salle de bains fonctionnelle ou des espaces de rangement intégrés, offrent tout le nécessaire pour un confort quotidien.
- Finitions : Simples mais durables, telles que des revêtements de sol en vinyle et des murs peints en blanc, garantissent une esthétique propre et soignée.
- Éclairage Naturel : Une fenêtre, une baie coulissante offre des éclairages naturels sont inclus pour apporter de la lumière naturelle à l'intérieur et créer une atmosphère accueillante.
Utilisation
- Logement Étudiant : Idéal pour les étudiants à la recherche d'un logement abordable et fonctionnel.
- Bureau à Domicile : Un espace de travail pratique pour les travailleurs indépendants ou les télétravailleurs qui ont besoin d'un bureau à domicile simple.
- Espace de Location : Une option attractive pour les propriétaires qui cherchent à louer un espace de vie ou de travail abordable sur leur propriété.
Personnalisation
Bien que les options de personnalisation soient limitées, le Studio Standard peut être ajusté pour répondre à certains besoins spécifiques du client, tels que des préférences de couleur ou des aménagements intérieurs simples.
Prix
- A partir de 28 900€ HT
